![WILDEN氣動隔膜泵,耐腐蝕氣動隔膜泵P100,塑料氣動隔膜泵價格,氣動隔膜水泵廠家-上海闊思銷售耐腐蝕氣動隔膜泵 [WILDEN氣動隔膜泵]耐腐蝕氣動隔膜泵P100](/system/upload/image/item/20180917/201809170733167004.jpg)





【WILDEN氣動隔膜泵】耐腐蝕氣動隔膜泵P100,威爾頓Wilden氣動隔膜泵
規格
接液部材質 運輸重量:
聚丙烯......................................4 kg (9 lbs)
聚偏氟乙烯..................................5 kg (11 lbs)
彈性體材質:
丁腈橡膠、SaniflexTM、聚亞胺酯、特氟隆PTFE、氟化橡膠、Wil-FlexTM
非接液部材質:
中間部.................聚丙烯
空氣閥.................聚丙烯
性能參數
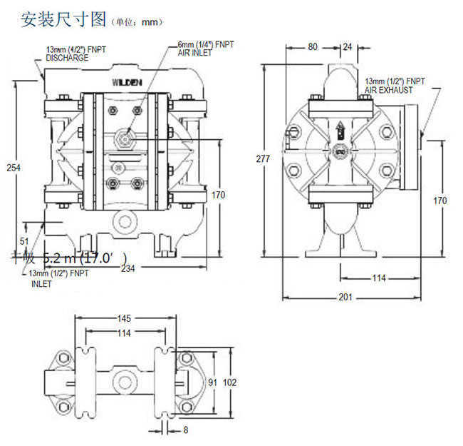
介質進口尺寸..................................1/2” (13 mm)
介質出口尺寸..................................1/2” (13 mm)
空氣進口尺寸....................................1/4” (6 mm)
大出口壓力...........................8.6 Bar (125 psig)
可通過得大固體顆粒直徑.......1/16” (1.6 mm)
大流量:
橡膠/熱塑性化合物..............58.7 lpm (15.5 gpm)
特氟隆PTFE...........................57.0 lpm (15.0 gpm)
大吸程:
橡膠/熱塑性化合物:干吸 5.2 m (17.0’) ,濕吸 8.7 m (28.4’)
特氟隆PTFE:干吸 4.5 m (14.7’) ,濕吸 9.3 m (30.6’)



WILDEN氣動隔膜泵各種隔膜材質的耐溫范圍:
材質:氯丁橡膠 -17.7°C —— 93.3°C (0°F—200°F)
材質:丁腈橡膠 -12.2°C —— 82.2°C (10°F—180°F)
材質:三元橡膠 -51.1°C —— 137.8°C (-60°F—280°F)
材質:氟化橡膠 -40°C —— 176.7°C (-40°F—350°F)
材質:Wil-Flex? -40°C —— 107.2°C (-40°F—225°F)
材質:Saniflex? -28.9°C ——104.4°C (-20°F—220°F)
材質:聚氨酯 -12.2°C——65.6°C (10°F—150°F)
材質:特氟隆PTFE 4.4°C ——104.4°C (40°F—220°F)
我要留言……
已有0條評論